# 1217
Whole Building Mixed-Use for Sale in Central Nicosia
Description
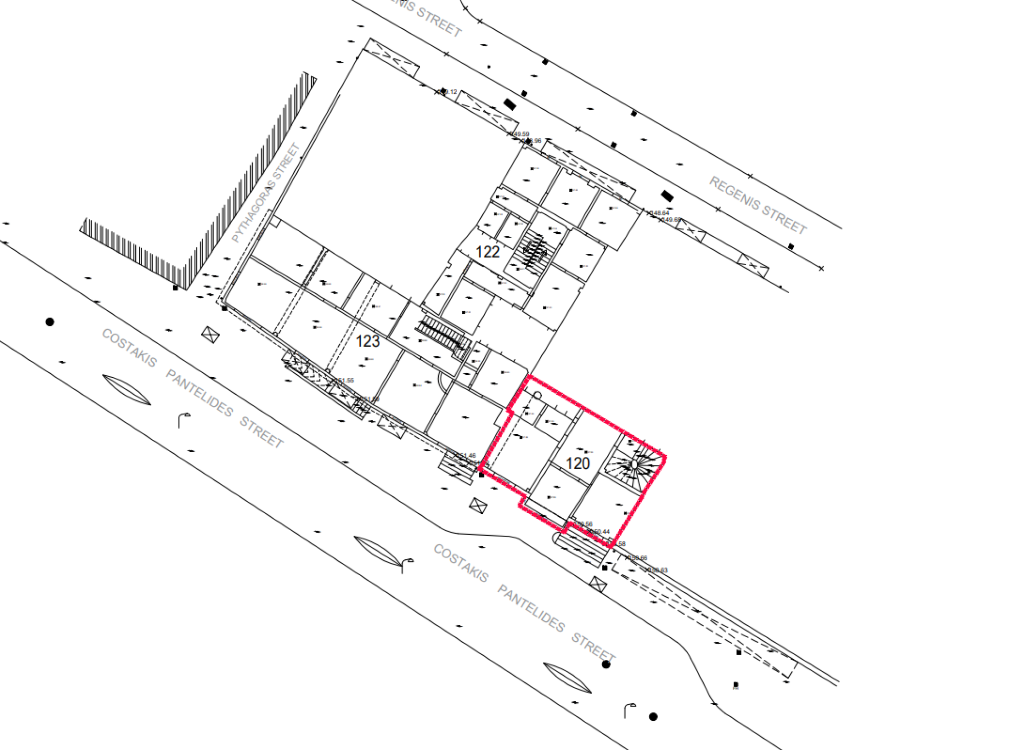
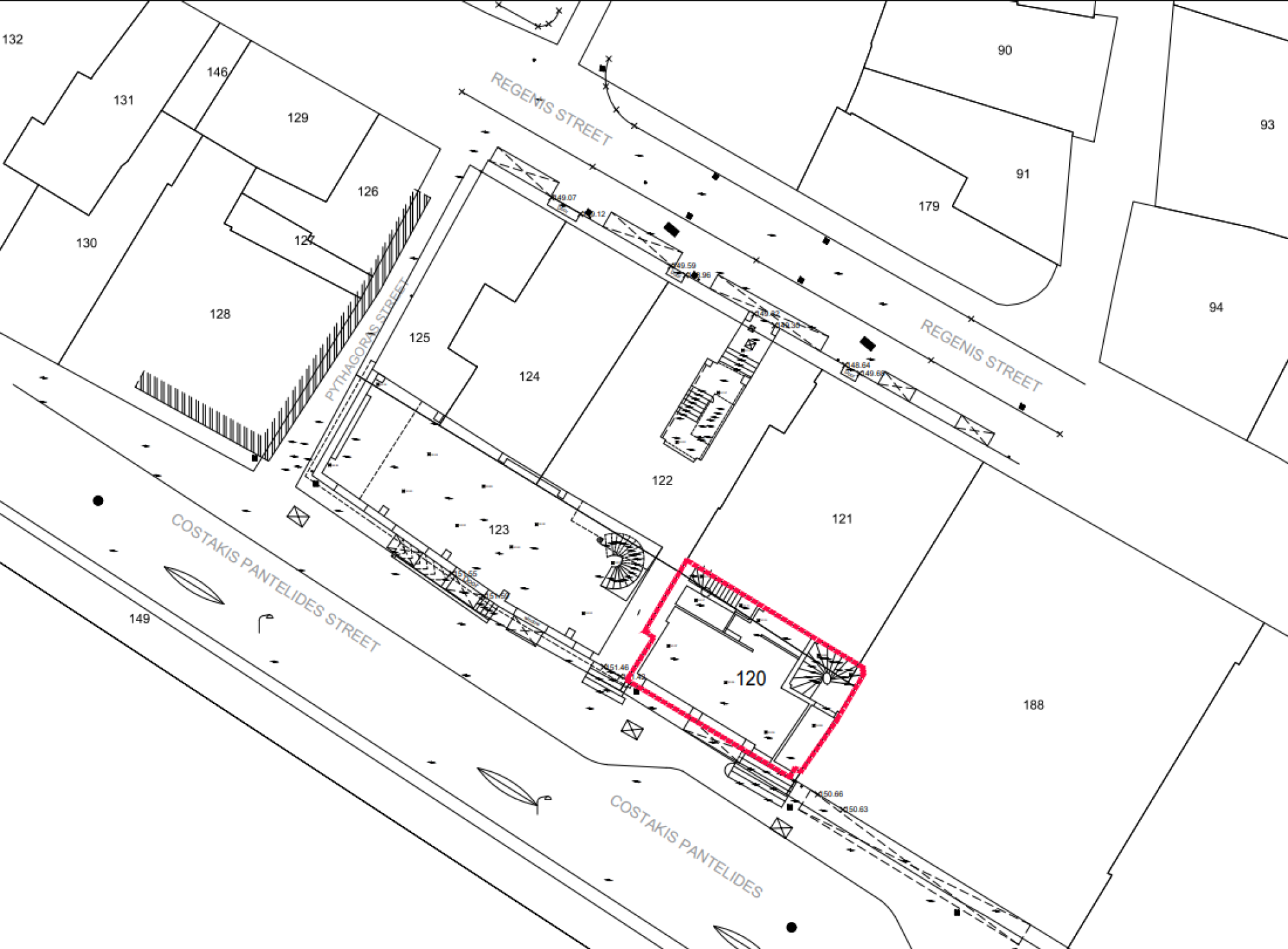
Location
Located at Liberty Square, within the renowned Venetian walls of Old Nicosia. Enjoy unmatched visibility on a high-traffic pavement, with shops, coffee houses, and restaurants nearby, making it an ideal destination for investors, entrepreneurs, or those seeking a unique urban residence.
Property Overview
- Total Area: 347 m²
Ground Floor
- Shop: 65 m²
- Basement: 72 m²
Upper Floors
- Three unique apartments, each spanning 70 m² (total 210 m²) across three floors
Key Features
- Historic significance: Nestled within the 16th-century Venetian walls, reflecting the country’s architectural heritage
- A vibrant area filled with shops, cafes, and restaurants
Ideal For
- Investors seeking a landmark property in a historic area
- Entrepreneurs seeking a commercial space in a high-visibility zone
- Individuals interested in city-center residential opportunities
